分譲住宅・土地 東広島 東広島市八本松飯田

☆新春キャンペーン実施中☆
ガーデンコート八本松をご購入の方に、土地価格から100万円お値引きします🎍
さらにモニター謝礼金として100万円をプレゼント🎁
1月31日(土)までにお申し込みいただいた方が対象になります。
ご検討中の方はぜひこの機会にお問合せください!
**********************************
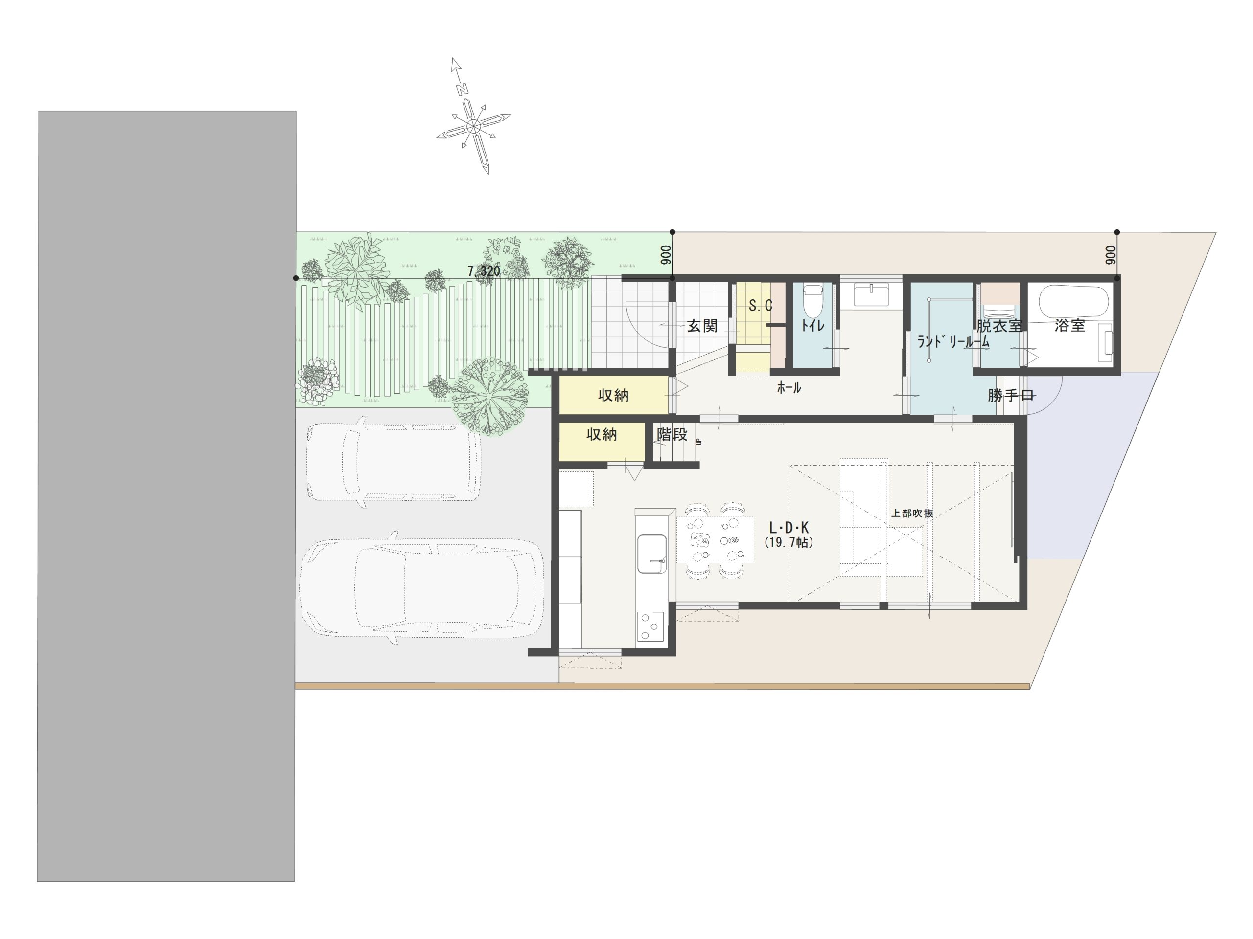
建築条件付土地
1号地 198.87㎡(60.15坪) 1,670万円
2号地 143.07㎡(43.27坪) 1,370万円
AREA周辺情報
ショッピング
- ゆめマート八本松
- 400m 徒歩5分
- セブンイレブン東広島八本松磯松店
- 450m 徒歩6分
- ジュンテンドー八本松店
- 700m 徒歩9分
学校・教育
- 川上小学校
- 1,300m 徒歩17分
- 磯松中学校
- 1,200m 徒歩15分
- 八本松みづき認定こども園
- 700m 徒歩9分
病院・医療施設
- 八本松病院
- 350m 徒歩5分
- 八本松歯科医院
- 350m 徒歩5分
交通機関
- 芸陽バス八本松病院前バス停
- 300m 徒歩4分
- JR寺家駅
- 2,000m 車8分
PROPERTY OVERVIEW概要
- 所在地
- 東広島市八本松飯田
- 価格
- 1370万円・1670万円
- 販売区画数
- 2区画
- 総区画数
- 3区画
- 土地面積
- 143.07㎡(43.27坪)・198.87㎡(60.15坪)
ACCESSアクセス
- 住所
- 東広島市八本松飯田1丁目
- 交通
-
JR山陽本線「寺家」駅車8分、芸陽バス「八本松病院前」バス停徒歩4分
見学予約はメールフォームから承っています。
下の入力項目に必要事項をご記入の上、ご予約ください。
※ご予約受付後、担当者より確認のご連絡をさせていただきまして予約確定となります。予約状況によっては、ご希望の日時に添いかねる場合がございます。
※カレンダーで選択できない日にちをご希望の方は、お電話(総合受付:082-545-7160)にてご連絡をお願いいたします。











